Rapid SL 2-u-1 Set za WC 1.13 m Instalacijska Visina 38536001

Free-Shipping
- %
ONLINE CENA
Brend: Grohe
SKU: 2226U99199004
Pogledati dostupnost u prodavnici

Stanje zaliha se može razlikovati. Pre posete salonu pozovi nas i proveri dostupnost proizvoda.

Ime objektaAdresaDostupna kolicina
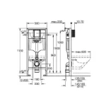
Grohe Rapid SL 2-u-1 set za WC visine 1,13 m donosi savršenu kombinaciju izdržljivosti, jednostavne montaže i dugotrajnog kvaliteta.
PDF dokumenta
Brza i sigurna isporuka
Plaćanje na rate
Cena pre popusta: 33.912,94  RSD
Ušteda:  23.739,06  RSD
23.739,06  RSD

pdp.loyalty.pricetext

Image crafter icon
i h

Cena važi od do

Tražiš pouzdano i praktično rešenje za ugradni WC sistem?


Grohe Rapid SL 2-u-1 set za WC visine 1,13 m donosi savršenu kombinaciju izdržljivosti, jednostavne montaže i dugotrajnog kvaliteta. Opremljen vodokotlićem GD 2 (6–9 l) i čeličnim ramom, ovaj sistem je dizajniran za maksimalnu stabilnost i jednostavnu ugradnju u zidne ili gipsane konstrukcije.

Zahvaljujući integrisanim nosačima i tihoj funkciji ispiranja, obezbeđuje udobno korišćenje bez buke, dok podesiva visina omogućava precizno prilagođavanje prostoru. Kompatibilan je sa svim Grohe tasterima i dizajniran za jednostavno održavanje.
Ovaj set je idealan izbor za one koji žele sigurnu konstrukciju, dug vek trajanja i elegantan završni izgled u svakom kupatilu.

 

  • Pouzdana konstrukcija – čelični ram pruža stabilnost i sigurnost

  • Tih rad – Grohe GD 2 vodokotlić omogućava tiho ispiranje (6–9 l)

  • Jednostavna ugradnja – podesiva visina i fleksibilni nosači

  • Kompatibilnost – odgovara svim Grohe tasterima i WC šoljama

  • Dugotrajnost – otporan na vlagu, projektovan za višegodišnje korišćenje

 

ČESTO POSTAVLJANA PITANJA (FAQ)

  • DA LI SE MOŽE UGRADITI U GIPSANU ZIDNU KONSTRUKCIJU? Da, Rapid SL set je pogodan za ugradnju i u čvrste i u gipsane zidove, uz sigurnu fiksaciju na metalni ram.
  • KOJI JE KAPACITET VODOKOTLIĆA? Model GD 2 omogućava podešavanje zapremine ispiranja od 6 do 9 litara u zavisnosti od potreba.
  • DA LI JE SET KOMPATIBILAN SA SVIM GROHE TASTERIMA? Da, Rapid SL je potpuno kompatibilan sa celokupnom serijom Grohe tastera za aktivaciju ispiranja.

 

👉 Treba ti još opcija? Pregledaj kompletnu kolekciju ugradnih vodokotlića i izaberi najbolju za svoj dom – brzo i lako!

Products specifications
Attribute nameAttribute value
KategorijaVodokotlić
MontažaUgradna
Dimenzija50x113
0.0 0
Napiši recenziju Napiši recenziju o proizvodu
  • Product can be reviewed only after purchasing it
  • Only registered users can write reviews
  • Bad
  • Excellent
*
*
Image crafter icon